
SHITET APARTAMENT 1+1 NE GOLEM!MUNDESI PAGESE ME KESTE
Te përgjithshme
Përshkrimi
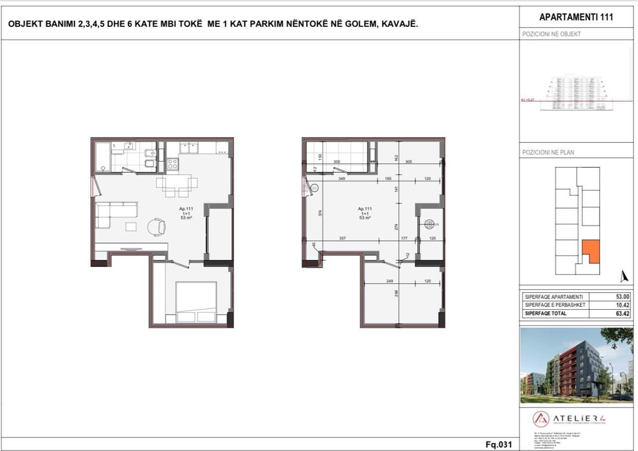
Apartamenti me siperfaqe te brendshme 53 m2 dhe siperfaqe totale 63.42 ndodhet ne katin e 3 te nje godite 6 kateshe ne faze ndertimi .Apartamenti organizohet ne 1 sallon + kuzhinen , 1 dhome gjumi , 1 tualet dhe 1 ballkon .- Pallati ndodhet 250 m nga deti -MUNDESI PAGESE ME KESTE .-Afati i perfundimit te pallatit eshte ne fund te vitit 2025 ..Per me shume informacion ose vizite ne prone na kontaktoni:0684540315



