1+1 DHE GARSONIERE NE LAPRAKE 189.000 EURO
Te përgjithshme
- Numri i Dhomave:: 2
- Siperfaqe totale:: 118
- Adresa: LAPRAKE
Përshkrimi
🏡 SHITET APARTAMENT 1+1 DHE GARSONIERE – KOMPLEKSI “AURA”, LAPRRAKË
📍 Prona ndodhet në kompleksin modern “Aura”, në zonën e Laprakës, një nga zonat më të kërkuara dhe në zhvillim të Tiranës. Kompleksi ofron standard të lartë ndërtimi, organizim të rregullt dhe akses të lehtë në rrugët kryesore.
✨ Detaje të pronës:
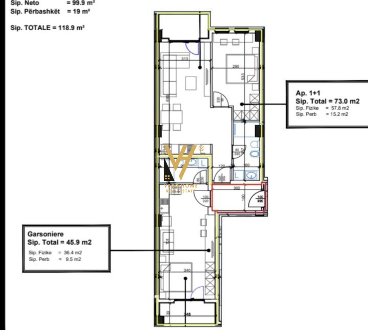
▫️ Sipërfaqe totale bruto: 118.9 m²
▫️ Sipërfaqe totale neto: 99.9 m²
▫️ Kati 5
▫️ Planimetri e rregullt
▫️ Orientim: Lindje – Perëndim
▫️ Kompleks i ri, me cilësi të lartë ndërtimi dhe administrim bashkëkohor
🏠 Garsonierja:
▫️ Sipërfaqe bruto: 45.9 m²
▫️ Sipërfaqe neto: 36.4 m²
▫️ Me tualet
🏠 Apartamenti 1+1:
▫️ Sipërfaqe bruto: 73 m²
▫️ Sipërfaqe neto: 57.8 m²
▫️ Me tualet dhe ballkon
💶Cmimi: 189.000 €
📞 Për më shumë informacion:
📱 067 672 2221
đź”– Kodi: E700


 
						 
						 
							 
							


